hero-image-0

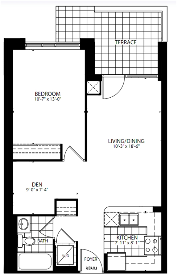
Stratus N Plan

Cloud9 Condominiums
Sold
Sold
1
1
1
From 638
unit-banner-imageunit-banner-imageunit-banner-image
Stratus N Plan details
Stratus N Plan is now sold.
Check out available nearby plans below.