hero-image-0

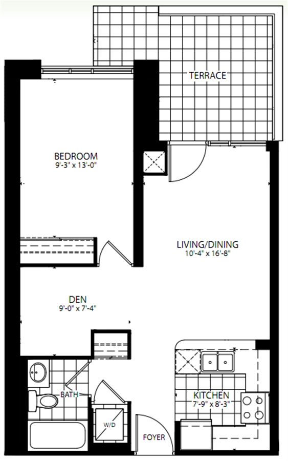
Stratus L Plan

Cloud9 Condominiums
Sold
Sold
1
1
1
From 615
unit-banner-imageunit-banner-imageunit-banner-image
Stratus L Plan details
Stratus L Plan is now sold.
Check out available nearby plans below.