hero-image-0

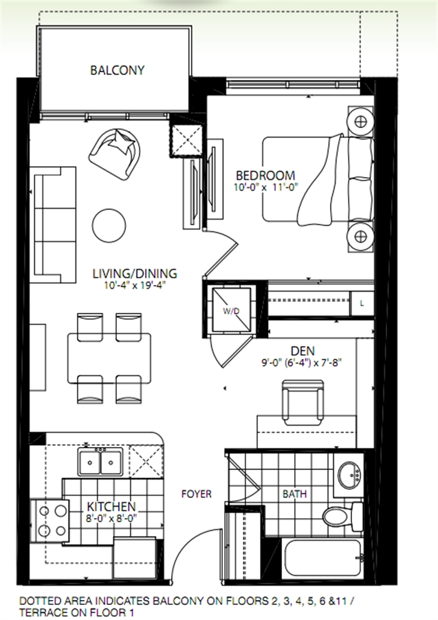
Stratus E Plan

Cloud9 Condominiums
Sold
Sold
1
1
1
From 623
unit-banner-imageunit-banner-imageunit-banner-image
Stratus E Plan details
Stratus E Plan is now sold.
Check out available nearby plans below.