hero-image-0

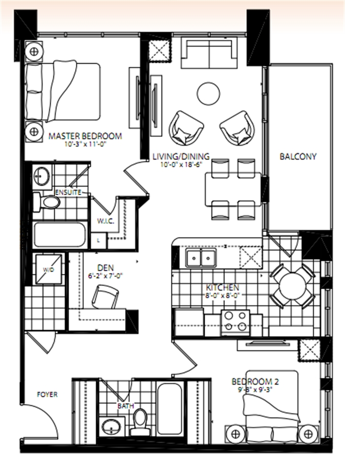
Nimbus B Plan

Cloud9 Condominiums
Sold
Sold
2
2
1
From 919
unit-banner-imageunit-banner-imageunit-banner-image
Nimbus B Plan details
Nimbus B Plan is now sold.
Check out available nearby plans below.