hero-image-0

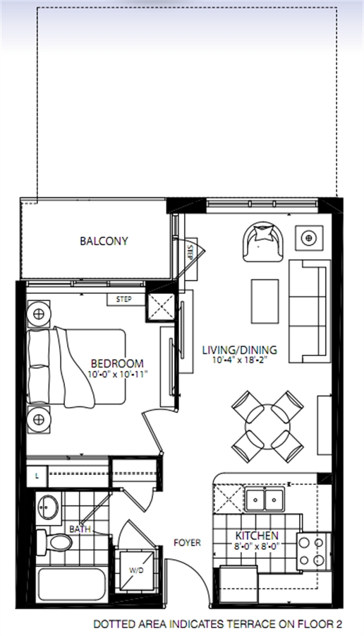
Cumulus I Plan

Cloud9 Condominiums
Sold
Sold
1
1
From 531
unit-banner-imageunit-banner-imageunit-banner-image
Cumulus I Plan details
Cumulus I Plan is now sold.
Check out available nearby plans below.