hero-image-0

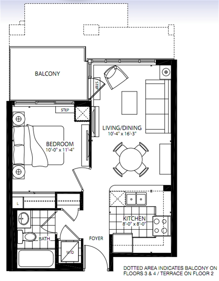
Cumulus G Plan

Cloud9 Condominiums
Sold
Sold
1
1
From 515
unit-banner-imageunit-banner-imageunit-banner-image
Cumulus G Plan details
Cumulus G Plan is now sold.
Check out available nearby plans below.