hero-image-0

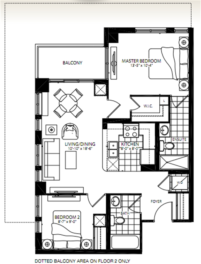
Cirrus B Plan

Cloud9 Condominiums
Sold
Sold
2
2
From 817
unit-banner-imageunit-banner-imageunit-banner-image
Cirrus B Plan details
Cirrus B Plan is now sold.
Check out available nearby plans below.