hero-image-0

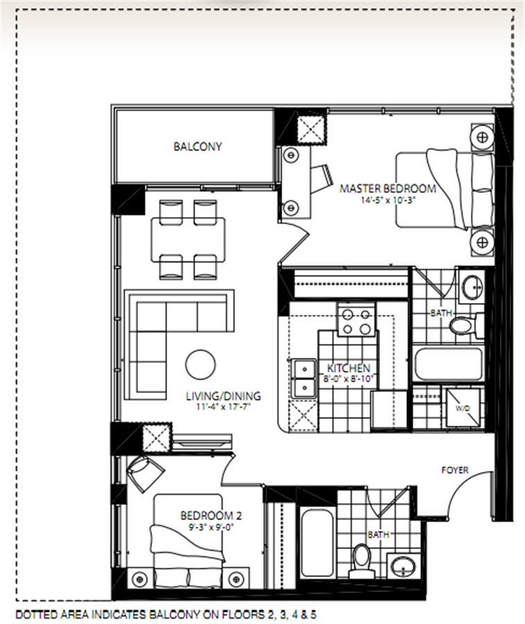
Cirrus A Plan

Cloud9 Condominiums
Sold
Sold
2
2
From 775
unit-banner-imageunit-banner-imageunit-banner-image
Cirrus A Plan details
Cirrus A Plan is now sold.
Check out available nearby plans below.