FEATURED
B15
Motto
Bloorcourt Village, Toronto
B21
B17
1E+D
Queen Church
Garden District, Toronto
B18
B20A
1G+D
1F+D
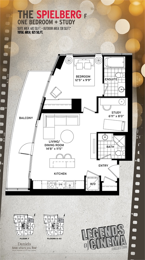
New details on Daniel’s rent-to-own program for the Cinema Tower in Toronto
Living in downtown Toronto has its perks – the easy access to work and play, the energy of city life, the countless entertainment options. But...