hero-image-0

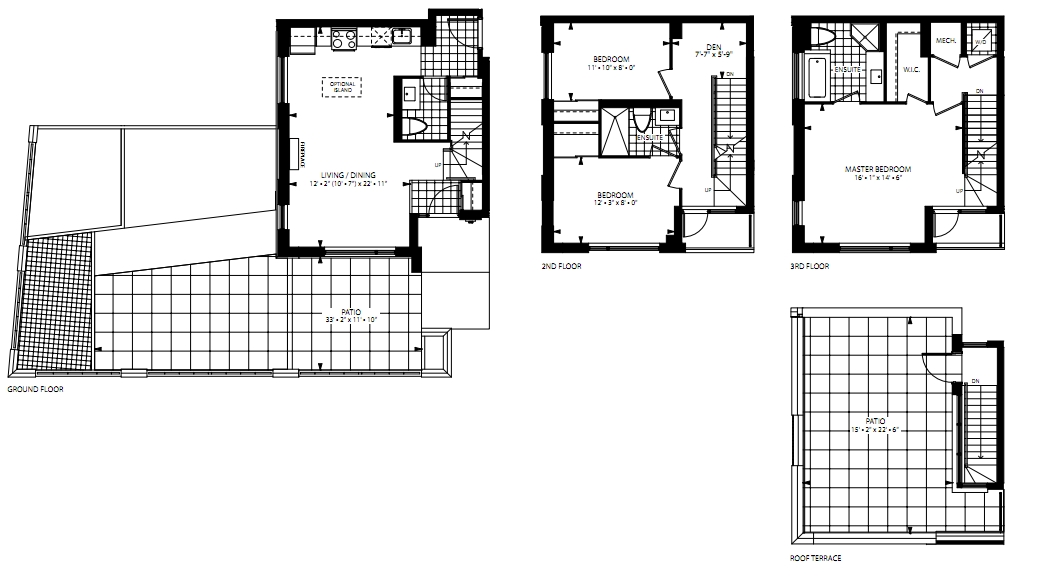
Unit 08 Plan

Celsius Condos
Sold
Sold
3
From 1,537
unit-banner-imageunit-banner-imageunit-banner-image
Unit 08 Plan details
Unit 08 Plan is now sold.
Check out available nearby plans below.