hero-image-0
Casa 3 Condos and Towns
Sold
Sold
1
1
From 507
unit-banner-imageunit-banner-imageunit-banner-image
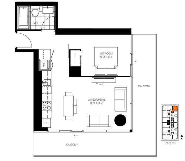
Massai Plan details
Massai Plan is now sold.
Check out available nearby plans below.