hero-image-0
Bohemian Embassy Flats and Lof...
Sold
Sold
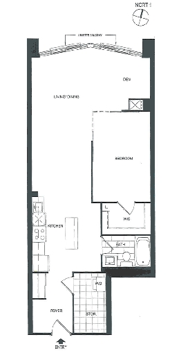
1
1
From 870
$451
unit-banner-imageunit-banner-imageunit-banner-image
Unit 17 Plan details
Unit 17 Plan is now sold.
Check out available nearby plans below.