hero-image-0
Bohemian Embassy Flats and Lof...
Sold
Sold
3
From 1,640
$546
unit-banner-imageunit-banner-imageunit-banner-image
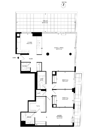
Unit 02 Plan details
Unit 02 Plan is now sold.
Check out available nearby plans below.