



Here’s what you need to know about Toronto’s new condo market this fall
From the biggest developments entering the construction phase to every upcoming condo launch this season, BuzzBuzzHome Market Snapshot data gives us a look ahead.

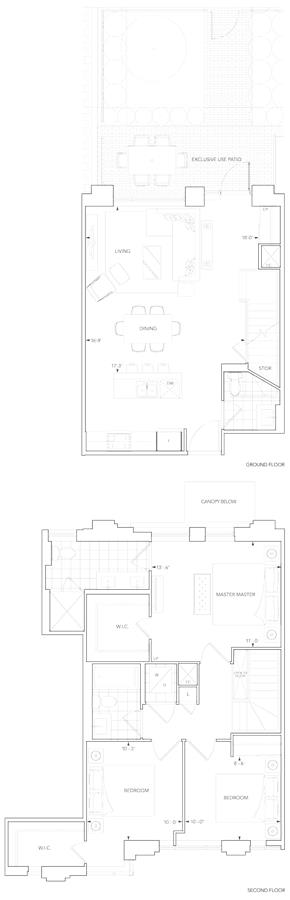
Introducing Bloorvista, the latest addition to Tridel’s Islington Terrace community
Designed by Kirkor Architects, Bloorvista will feature one bedroom, one bedroom plus den, two bedroom and two bedroom plus den condo suites.