FEATURED
E6
Motto
Bloorcourt Village, Toronto
E7
E9
E8
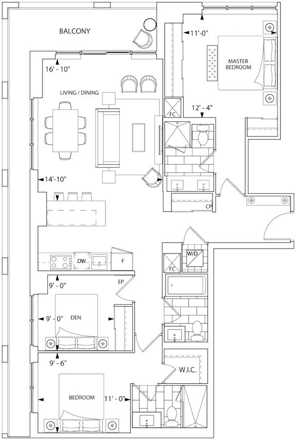
E6A
D1
D4
E13
Curvy condo building on subway line pitched for The Kingsway
A prominent Toronto condo developer has a plan in the works for a mixed-use project between two Bloor Street subway stations.