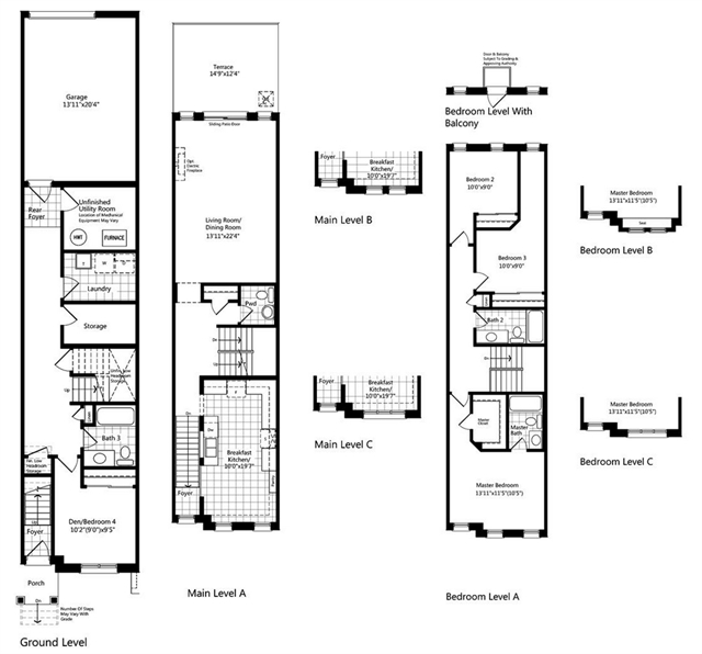
The Treetop B - North End Unit
Inspire Modern Towns
Golfdale-Cedarbrae-Woburn, Toronto
The Ravine A - Internal
The Treetop - B End
The Meadow (End)
The Ravine-A (End)
The Ravine-B (End)
The Treetop - B
The Ravine-B
Buzz Talk with Brad Carr [INTERVIEW]
Today we’re buzzing with Brad Carr, the newly minted president of the famed GTA home builder, Monarch. Brad joined Monarch in 2001 as Manager of...