hero-image-0

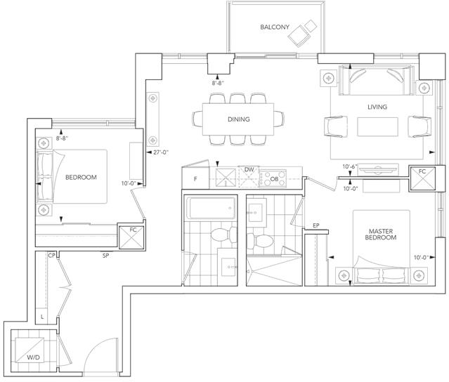
2AC Plan

By

Tridel

   |   

Bianca

Bianca
Sold
Sold
2
2
From 883
unit-banner-imageunit-banner-imageunit-banner-image
2AC Plan details
2AC Plan is now sold.
Check out available nearby plans below.