FEATURED
E8
Motto
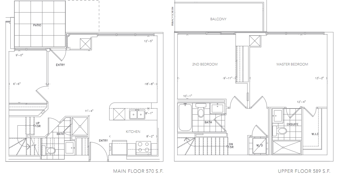
Bloorcourt Village, Toronto
E9
E6A
D1
E7
E6
E13
D4
Experiment in “sponsored living” sees Toronto blogger move into Empire Communities penthouse for a week
Empire Communities gave Zach Bussey the opportunity to sleep in a bed for the first time in months.