FEATURED
E6
Motto
Bloorcourt Village, Toronto
D1
E7
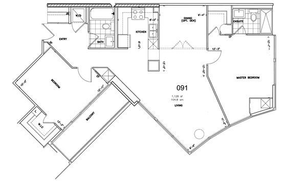
E6A
E8
E9
E13
D4
Experiment in “sponsored living” sees Toronto blogger move into Empire Communities penthouse for a week
Empire Communities gave Zach Bussey the opportunity to sleep in a bed for the first time in months.