Valencia 698
Encore at Bravo
Vaughan Corporate Centre, Vaughan
Valencia 622
Valencia 642
Valencia 685
Valencia 624
Valencia 691 R
Valencia 614
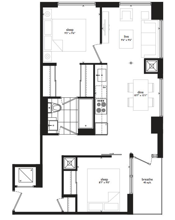
Valencia 691
Get your first peek at the scale model of Beacon Condos in North York
Check out our pics of the impressive replica.