hero-image-0

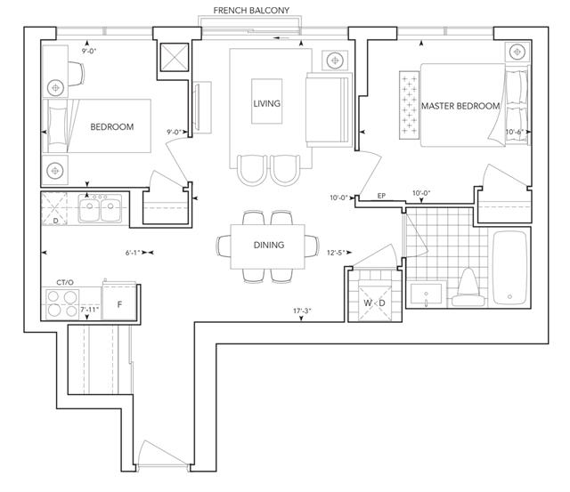
2A1 Plan

By

Tridel

   |   

Avani At Metrogate

Avani At Metrogate
Sold
Sold
2
From 660
unit-banner-imageunit-banner-imageunit-banner-image
2A1 Plan details
2A1 Plan is now sold.
Check out available nearby plans below.