hero-image-0
hero-image-1

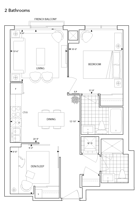
1E+D Plan

By

Tridel

   |   

Avani At Metrogate

Avani At Metrogate
Sold
Sold
1
From 690
unit-banner-imageunit-banner-imageunit-banner-image
1E+D Plan details
1E+D Plan is now sold.
Check out available nearby plans below.