The Coral
Gallery Towers
Unionville, Markham
The Hunter
The Scarlet
The Navy
The Indigo
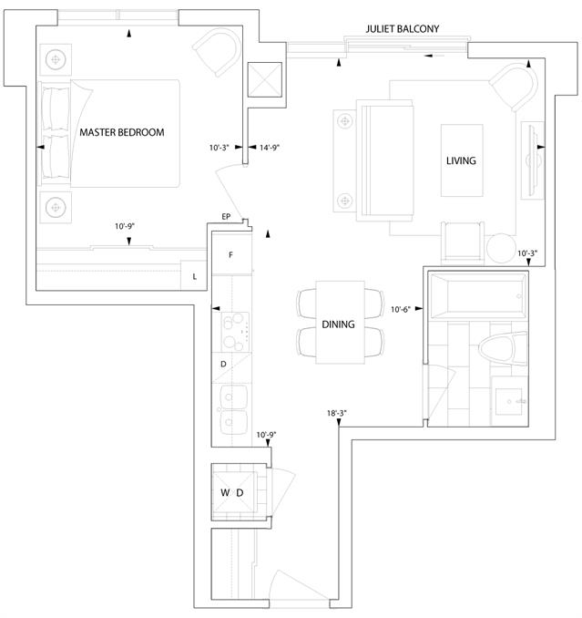
The Ruby
The Fuchsia
The Orchid
Tridel introduces Avani 2 at Metrogate in Scarborough
The condominium overlooks Metrogate Park, a sanctuary for neighbours to relax, play and congregate.