hero-image-0

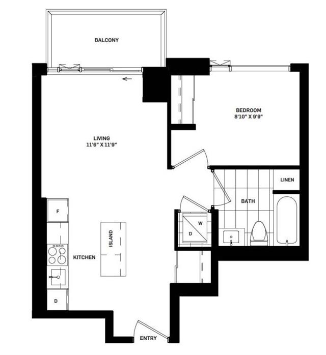
Paintbrush Plan

Artworks Tower
Sold
Sold
1
1
From 554
unit-banner-imageunit-banner-imageunit-banner-image
Paintbrush Plan details
Paintbrush Plan is now sold.
Check out available nearby plans below.