hero-image-0
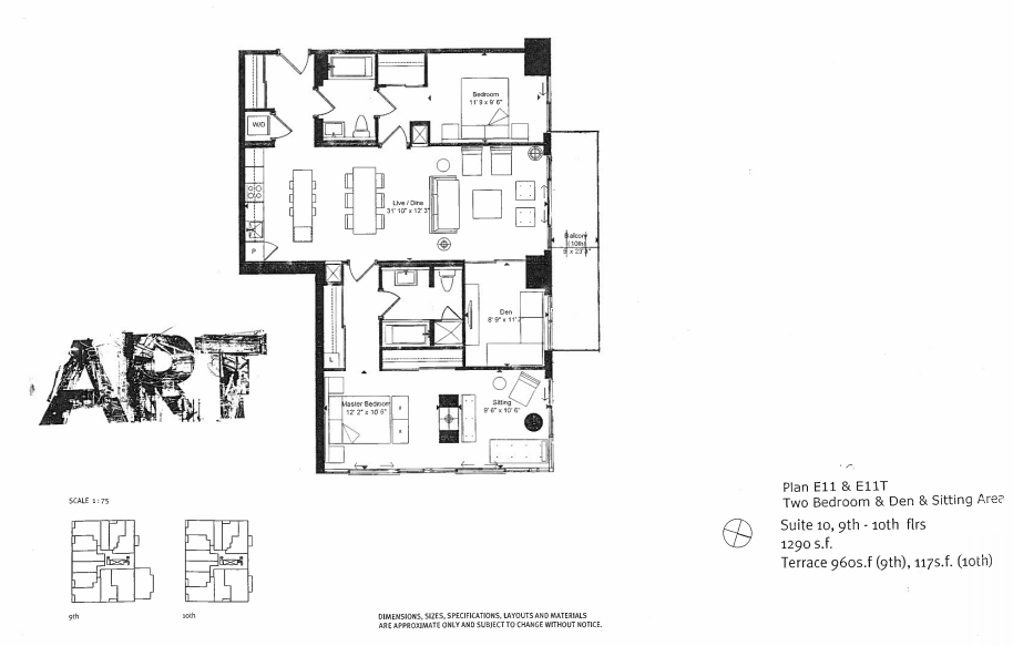
Art Condominiums
Sold
Sold
2
1
From 1,290
unit-banner-imageunit-banner-imageunit-banner-image
E11 Plan details
E11 Plan is now sold.
Check out available nearby plans below.