hero-image-0
Art Condominiums
Sold
Sold
2
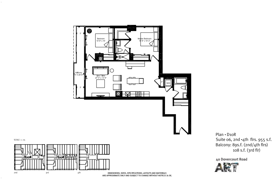
From 955
unit-banner-imageunit-banner-imageunit-banner-image
D10R Plan details
D10R Plan is now sold.
Check out available nearby plans below.