hero-image-0
Art Condominiums
Sold
Sold
2
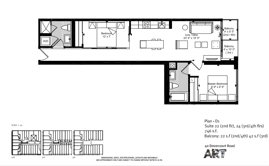
From 746
unit-banner-imageunit-banner-imageunit-banner-image
D1 Plan details
D1 Plan is now sold.
Check out available nearby plans below.