FEATURED
The Park
The Winston
Willowdale West, Toronto
The Chelsea
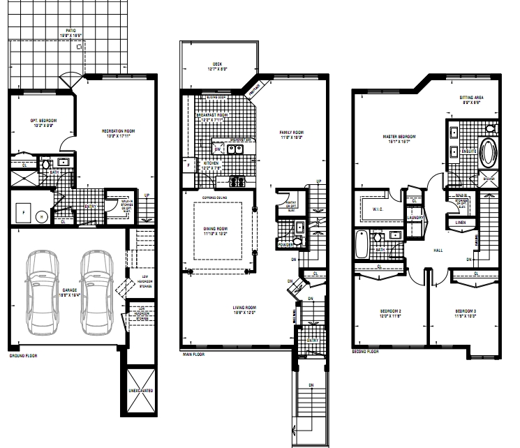
RLAG-2 Elev. F
Townhomes at Crosstown
Flemingdon Park, Toronto
RLAG-2E Elev. G
The Victoria
Amsterdam Urban Towns
Topham Park, Toronto
RLAG-2 Elev. B
The Holland
The Westview