hero-image-0
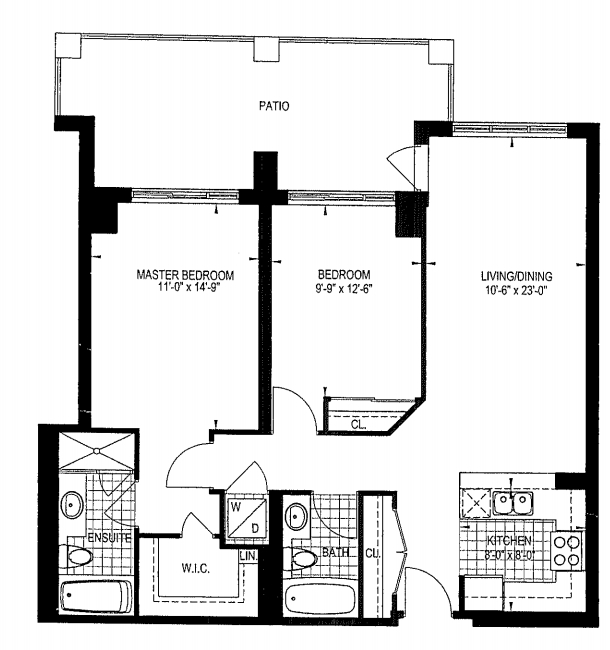
Aria Condominiums Phase 2
Sold
Sold
2
From 1,025
$496
unit-banner-imageunit-banner-imageunit-banner-image
2Q Plan details
2Q Plan is now sold.
Check out available nearby plans below.