hero-image-0
hero-image-1

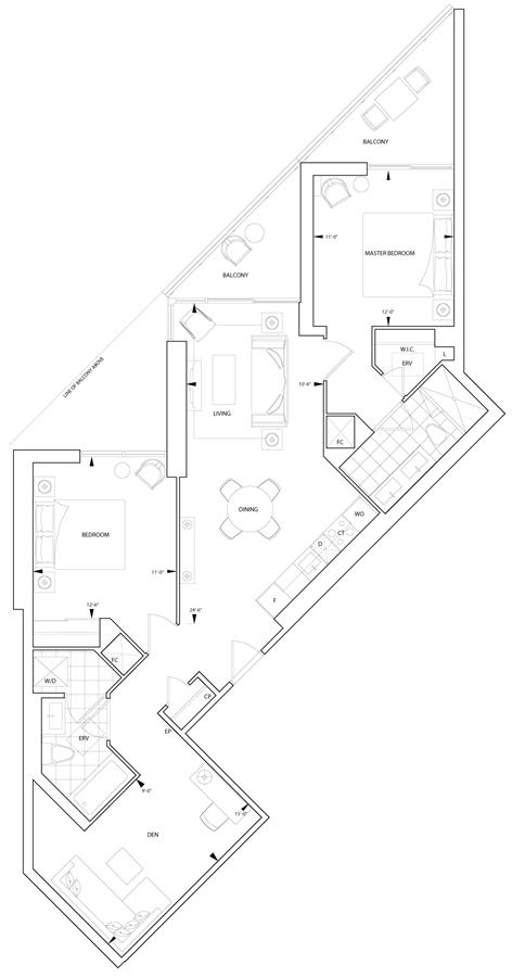
2L+DT Plan

By

Tridel

and

Hines

   |   

Aquavista

Aquavista
Sold
Sold
2
2
1
From 1,119
unit-banner-imageunit-banner-imageunit-banner-image
2L+DT Plan details
2L+DT Plan is now sold.
Check out available nearby plans below.