hero-image-0
hero-image-1

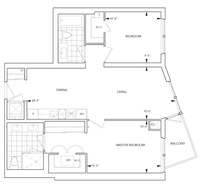
2Ga Plan

By

Tridel

and

Hines

   |   

Aqualina

Aqualina
Sold
Sold
2
2
From 916
unit-banner-imageunit-banner-imageunit-banner-image
2Ga Plan details
2Ga Plan is now sold.
Check out available nearby plans below.