hero-image-0

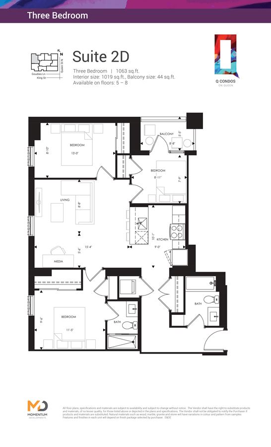
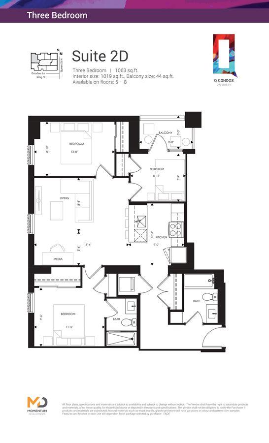
Unit 607

Angular (former)
For sale
For sale
$849,990
Available
3
2
1,019
$834
Unit 607 details
unit-banner-image
unit-banner-image
unit-banner-image

Contact sales center

Get additional information including price lists and floor plans.

Floor plan

2023_10_17_01_33_10_2d.jpg
Sold

Suite 2D

Q Condos

Interested? Receive updates

Stay informed with Livabl updates on new community details and available inventory.