hero-image-0
hero-image-1
hero-image-2
hero-image-3
hero-image-4

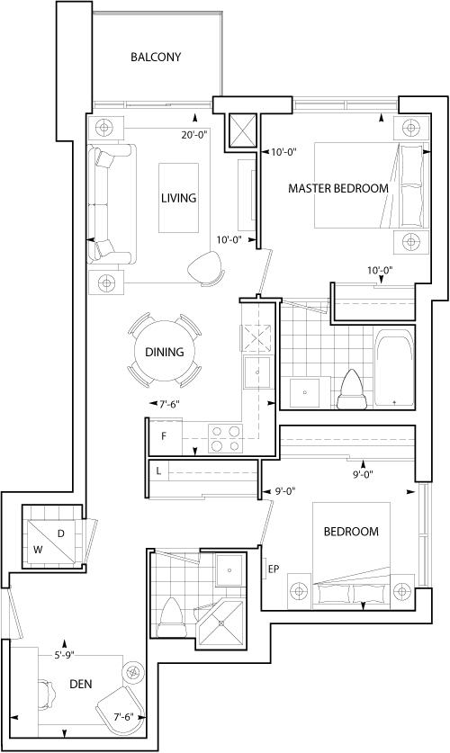
2D+DR Plan

Alto & Parkside at Atria
Sold
Sold
2
2
1
From 749
unit-banner-imageunit-banner-imageunit-banner-image
2D+DR Plan details
2D+DR Plan is now sold.
Check out available nearby plans below.