hero-image-0

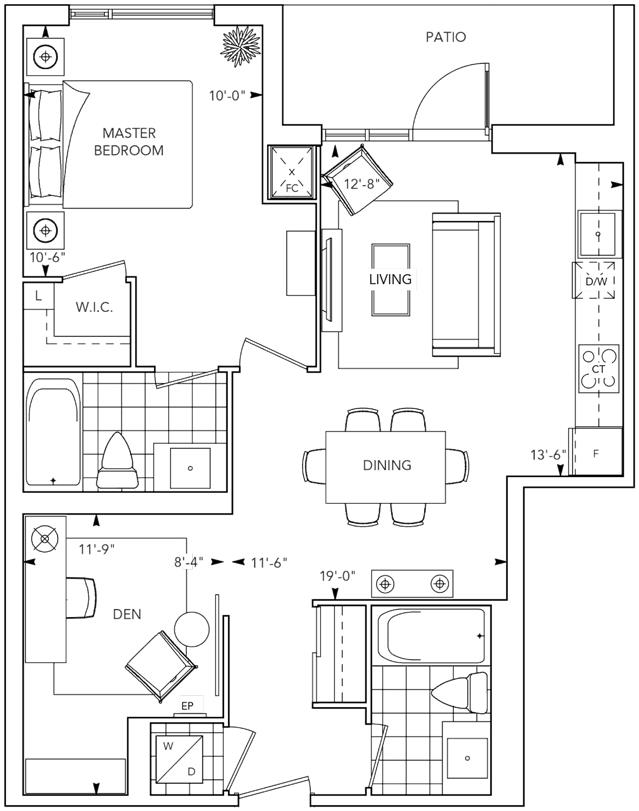
1R+DP Plan

Alto & Parkside at Atria
Sold
Sold
1
2
1
From 735
unit-banner-imageunit-banner-imageunit-banner-image
1R+DP Plan details
1R+DP Plan is now sold.
Check out available nearby plans below.