hero-image-0

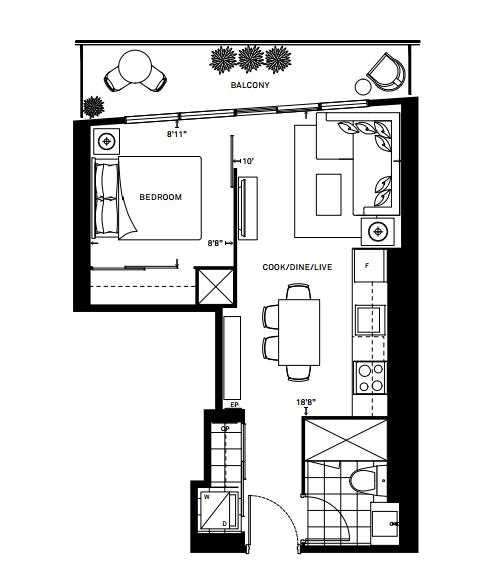
1Ba Plan

By

Tridel

   |   

Alter

Alter
Sold
Sold
1
1
From 427
unit-banner-imageunit-banner-imageunit-banner-image
1Ba Plan details
1Ba Plan is now sold.
Check out available nearby plans below.