hero-image-0

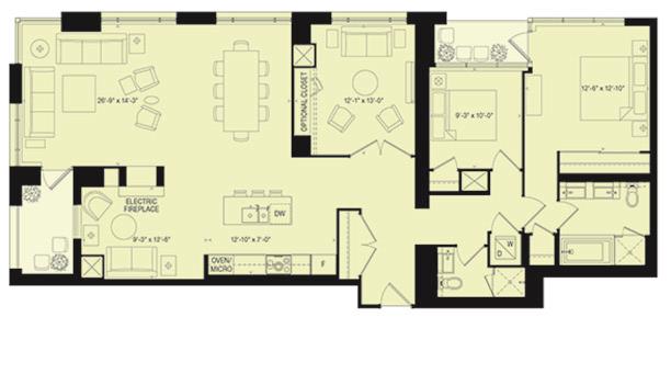
Plan E19

88 Scott
Sold
Sold
2
1
From 1,637
unit-banner-imageunit-banner-imageunit-banner-image
Plan E19 details
Plan E19 is now sold.
Check out available nearby plans below.