hero-image-0

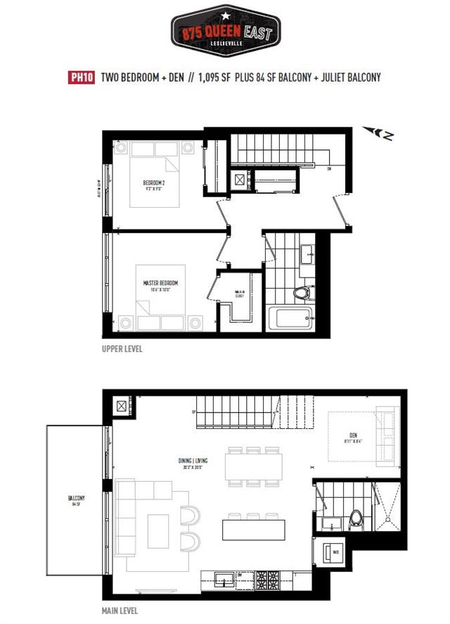
Unit 710

875 Queen East
Sold
Sold
2
2
1
1,095
Unit 710 details
unit-banner-image
unit-banner-image
unit-banner-image
Unit 710 is now sold.
Check out available nearby condos below.