hero-image-0
625 Sheppard
For sale
For sale
From $1,099,900
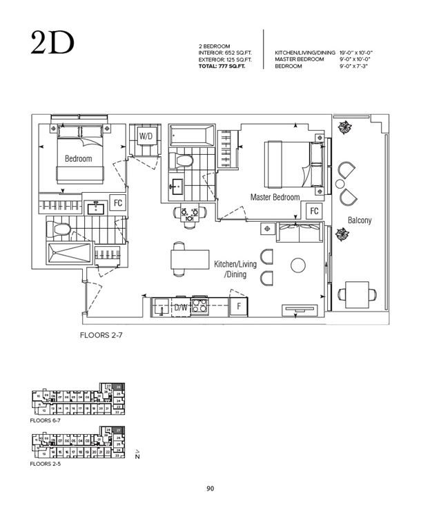
2
2
From 652
$1,687
unit-banner-imageunit-banner-imageunit-banner-image
2D Plan details

Contact sales center

Get additional information including price lists and floor plans.

Interested? Receive updates

Stay informed with Livabl updates on new community details and available inventory.