hero-image-0

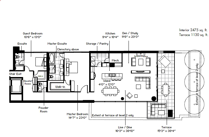
Residence Two Plan

500 Wellington West
Sold
Sold
2
From 2,475
unit-banner-imageunit-banner-imageunit-banner-image
Residence Two Plan details
Residence Two Plan is now sold.
Check out available nearby plans below.