hero-image-0

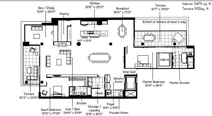
Residence Four Plan

500 Wellington West
Sold
Sold
2
From 3,470
unit-banner-imageunit-banner-imageunit-banner-image
Residence Four Plan details
Residence Four Plan is now sold.
Check out available nearby plans below.