hero-image-0

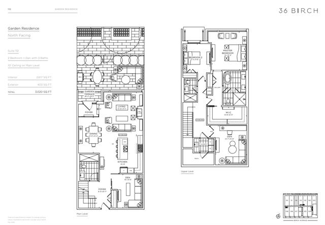
112

By

North Drive

   |   

36 Birch

36 Birch
Sold
Sold
2
3
1
2,617
112 details
unit-banner-image
unit-banner-image
unit-banner-image
112 is now sold.
Check out available nearby townhomes below.