hero-image-0

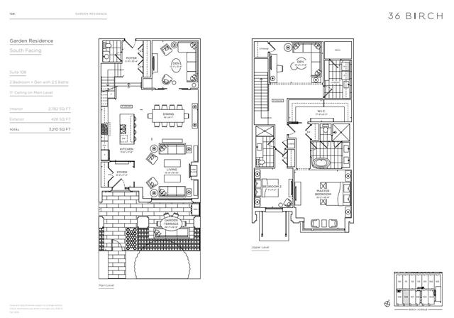
108

By

North Drive

   |   

36 Birch

36 Birch
Sold
Sold
2
2
1
1
2,782
108 details
unit-banner-image
unit-banner-image
unit-banner-image
108 is now sold.
Check out available nearby townhomes below.