hero-image-0

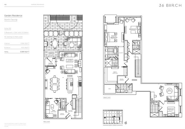
102

By

North Drive

   |   

36 Birch

36 Birch
Sold
Sold
3
3
1
1
3,186
102 details
unit-banner-image
unit-banner-image
unit-banner-image
102 is now sold.
Check out available nearby townhomes below.