hero-image-0
32 Camden Street
Sold
Sold
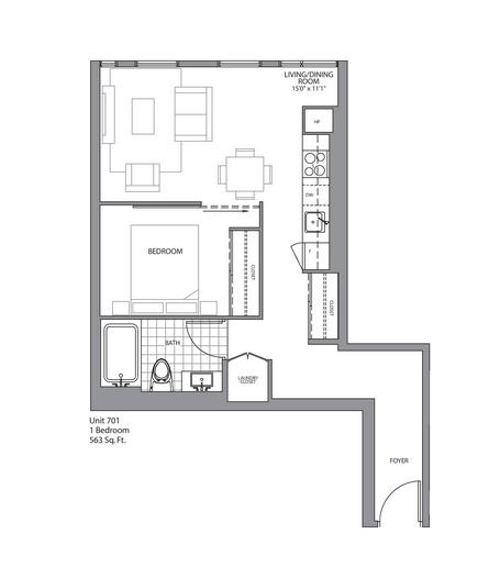
1
1
578
Unit 701 details
unit-banner-image
unit-banner-image
unit-banner-image
Unit 701 is now sold.
Check out available nearby condos below.