hero-image-0
210 Simcoe
Sold
Sold
1
1
From 481
unit-banner-imageunit-banner-imageunit-banner-image
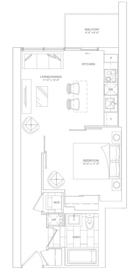
519 Plan details
519 Plan is now sold.
Check out available nearby plans below.