hero-image-0
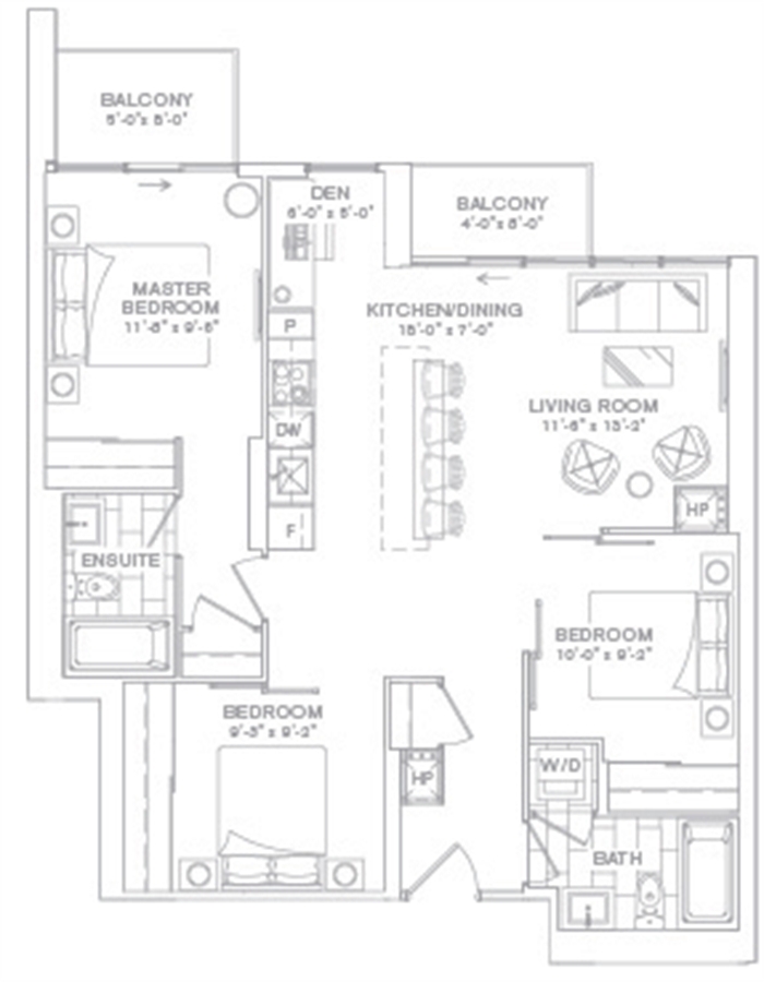
210 Simcoe
Sold
Sold
3
2
1
From 952
unit-banner-imageunit-banner-imageunit-banner-image
1024 Plan details
1024 Plan is now sold.
Check out available nearby plans below.