hero-image-0

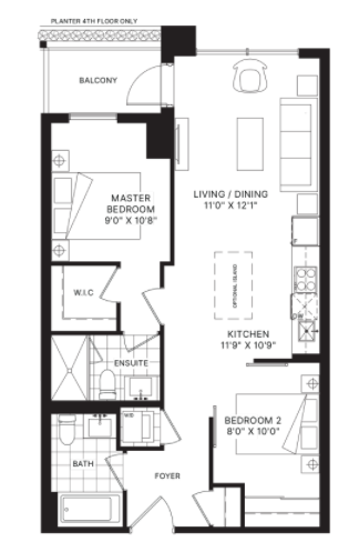
The Hillcrest Plan

181 East
Sold
Sold
2
2
From 722
unit-banner-imageunit-banner-imageunit-banner-image
The Hillcrest Plan details
The Hillcrest Plan is now sold.
Check out available nearby plans below.