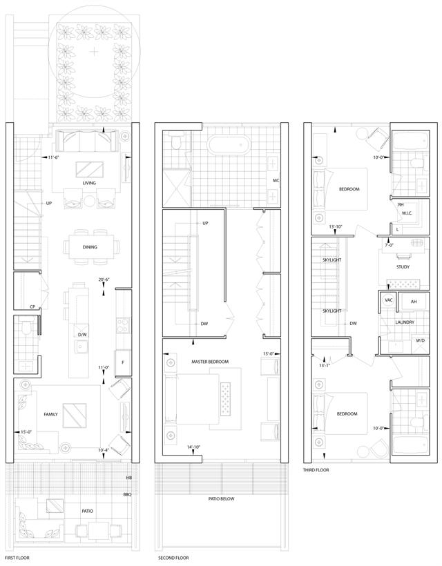
Block 21 - Unit 1
English Lane Phase 2
Don Mills, Toronto
1171 Avenue Road
The Briar on Avenue
Lytton Park, Toronto
Block 23 - Unit 2
Block 25 - Unit 1
1177 Avenue Road
1173 Avenue Road
372 Briar Hill Avenue
1179 Avenue Road