hero-image-0
hero-image-1

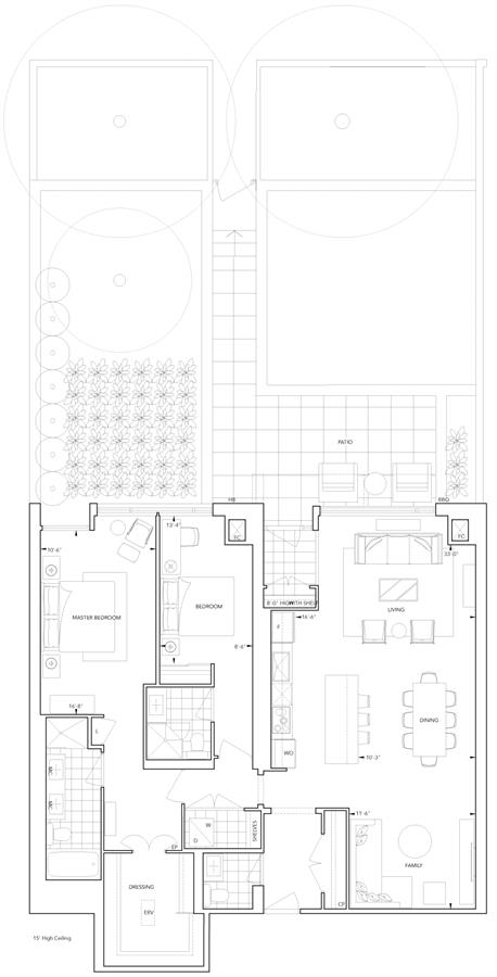
L2D Plan

101 Erskine
Sold
Sold
2
From 1,540
unit-banner-imageunit-banner-imageunit-banner-image
L2D Plan details
L2D Plan is now sold.
Check out available nearby plans below.