hero-image-0
hero-image-1

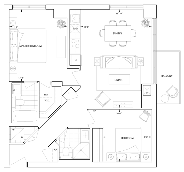
2F1 Plan

101 Erskine
Sold
Sold
2
2
From 839
unit-banner-imageunit-banner-imageunit-banner-image
2F1 Plan details
2F1 Plan is now sold.
Check out available nearby plans below.